松本市・諏訪市近隣でテナント・事業用物件を探すならZERO不動産へ > (事務所(賃貸))地域から探す > 諏訪市 > エンニビル(3階)
多くの方からご好評頂いているエンニビル(3階)のご紹介です。需要性の高い、礼金不要の快適空間をご提供いたします。3台分の駐車スペースがあるので、車をご利用の方はぜひお問い合わせください。賃料10万円以下をご希望のお客様、ぜひお問い合わせください。

| 所在地 | 長野県諏訪市清水2丁目 | ||
|---|---|---|---|
| 交通 | |||
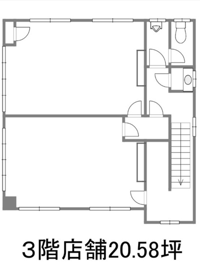
| 賃料/坪単価 | 8万円/0.39万円 | 坪数(面積) | 20.58坪(68.06㎡) |
| 管理費・共益費 | - | 敷金/礼金/保証金 | 3ヶ月/0ヶ月/- |
| 償却/敷引 | -/- | 更新料 | - |
| 権利金/雑費 | -/- | ||
| 造作譲渡金 | - | 駐車場/月額料金 | 空有(3台)/0円 |
| 保険加入/料金 | 有/- | 保険名/保険期間 | -/- |
| 保証人代行義務 | 必加入 | 保証会社 | - |
| 保証会社詳細 | - | 向き | - |
| 築年月(築年数) | - (-) | 契約期間 | - |
| 種別/構造 | 事務所/鉄骨造 | 部屋/所在階/階建 | -/3階/3階建 |
| 総戸数 | - | 現況/引渡時期 | 空家/相談 |
| 取引態様 | 一般媒介 | 用途地域 | - |
| 物件番号 | 71740822 | 取引条件の有効期限 | 2026年04月20日 |
| 設備条件 |
|
||
| 備考 | 2階部分と3階部分を合わせてお借りいただけます。ご相談下さい。 | ||
| 取扱会社 |
|
||
| QRコード |
このQRコードを読み取ることで、スマホでも物件情報を確認できます。 |
||
※地図上に表示される物件の位置は付近住所に所在することを表すものであり、実際の物件所在地とは異なる場合がございます。
エンニビル(3階)に関するこだわり条件から探す
諏訪市にある駅から探す
エンニビル(3階)周辺の駅から探す